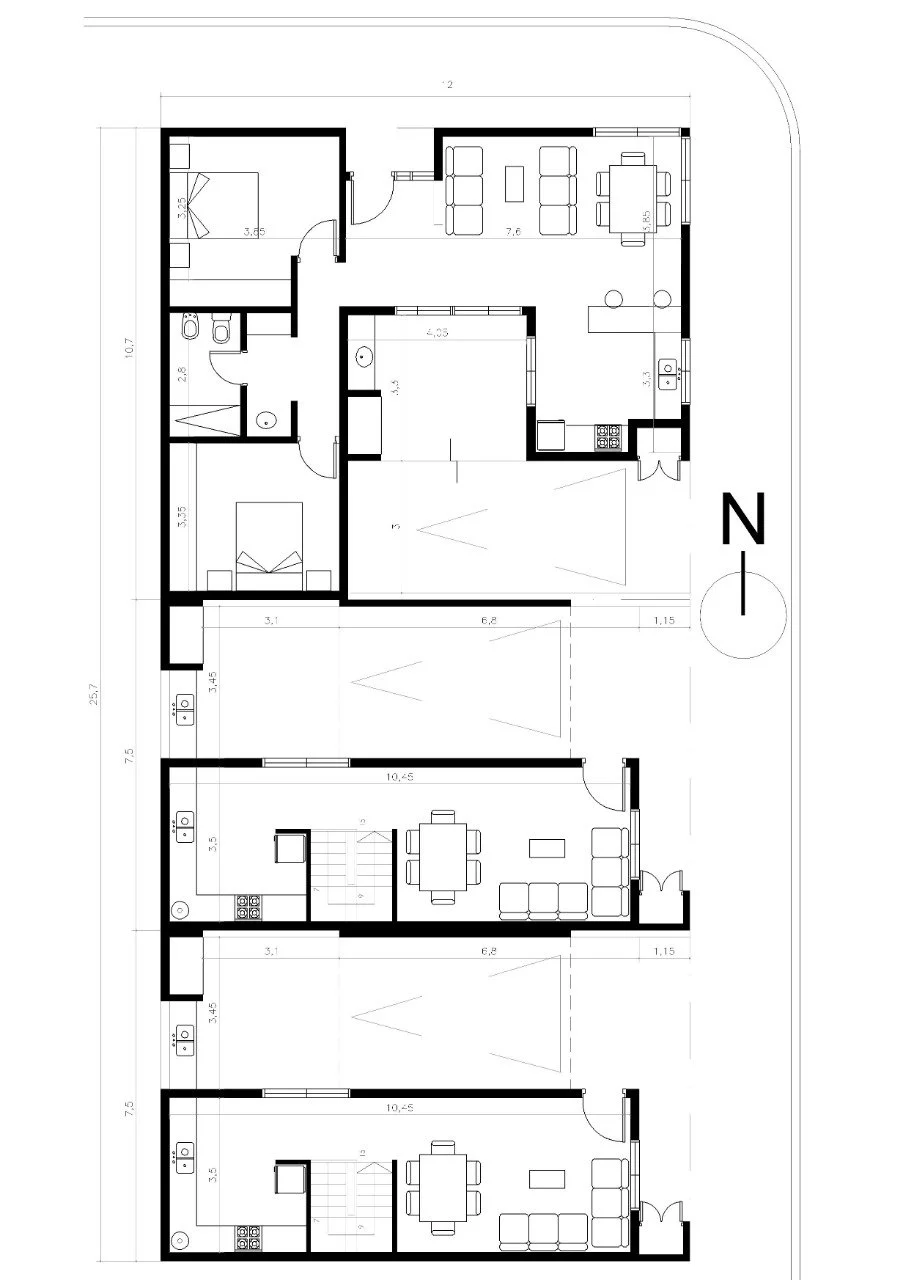
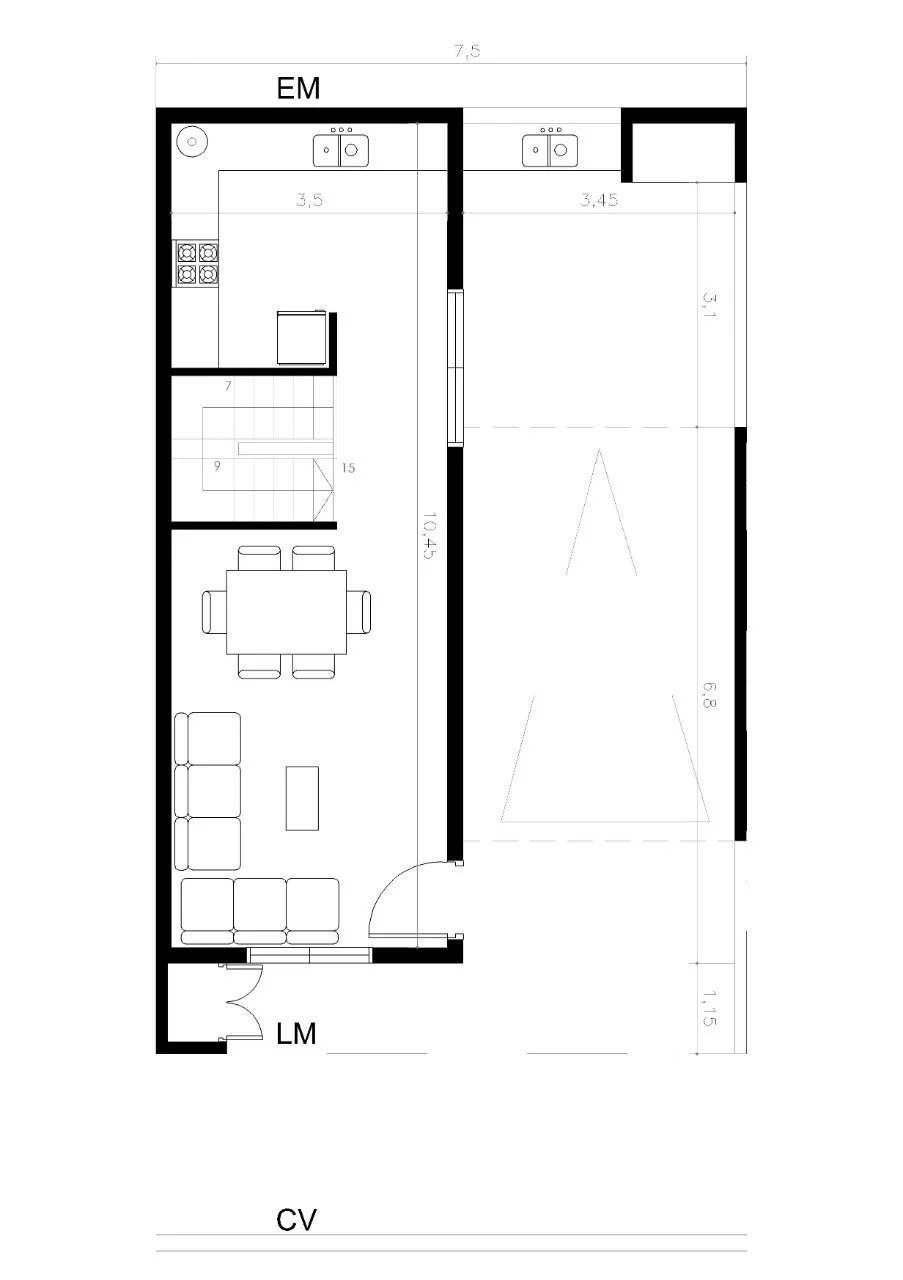
PH Villa Dolores, 3 departamentos 2 dormitorios en Lote tipo.

Estudio del Arquitecto SEBASTIAN MERLO. +54-3544-402565

  OFICINA TECNICA, certificados, dirección técnica, subcontratos y pedidos de materiales

  VILLA DOLORES CORDOBA, desde agosto del 2020 a noviembre del 2025.

Anterior
Anterior

CASA ANNA

Siguiente
Siguiente

Quincho