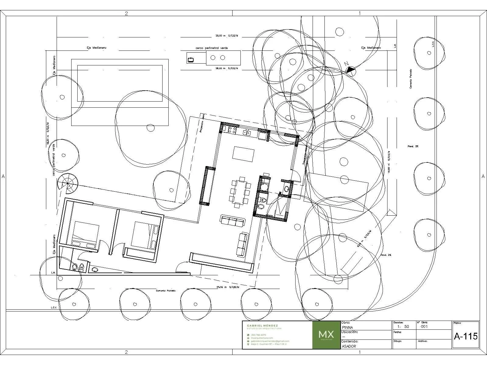
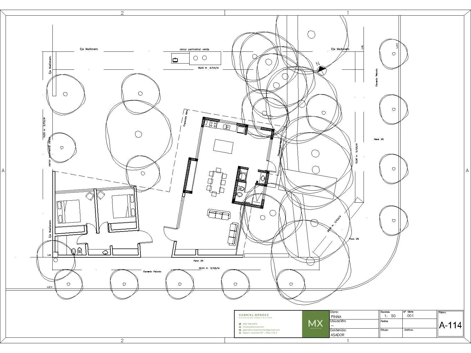
En Villa Dolores Traslasierra en Barrio San Isidro, a metros de colegio Cerro Azul asentada sobre el lateral sur de  un lote en esquina, vivienda unifamiliar que mira al norte y al este con su arboleda de talas y principal vista a las sierras comechingonas

Anterior
Anterior

Torre Bernaldez

Siguiente
Siguiente

Casa Ferr